
Our functional experience with SAP is related to the TACTICAL aspects of implementing an automation project. Our focus is on tracking where things are, and where they need to be. For material handling, this means producing or receiving a material, labeling it, storing it, counting it, consuming it, or shipping it.
This crosses many modules in SAP, and we have experience with all of them that relate to material handling. Our goal is to make SAP easier, by simplifying the way the system gets updated and automating repetitive tasks. We use technology to capture information more quickly and with less effort, and capture the information at the point of input.
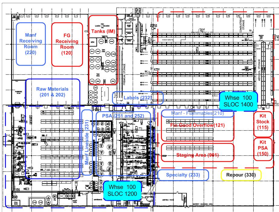
Not using Warehouse Management, or want to automate a production facility? No problem. In addition to warehouses and distribution centers, we have brought automation to many other types of operations. For example, in the manufacturing site shown below we implemented a mix of WM and IM functionality for materials management.

The complexity of a system and the need for automation are often directly related to the complexity of the materials being managed. Are they batch managed, with specific batch characteristics? Are there customer specific product requirements? Are parts serialized? Do containers or pallets need to be individually identified and tracked separately? Are there special stocks or hazardous materials? When and how will the product get labeled?
We also ask the fundamental questions that are true for any inventory system. How will the material be stored? What is the most efficient way to pick the material? What is the most efficient way to lay out the storage area to efficiently store or retrieve the material? How can inventory accuracy be improved? How can user productivity be increased?
Where does configuration stop and the need to customize become a requirement? We understand SAP's capabilities and strive to use native functionality when it fits. But when something is mission critical and the standard functionality does not fit, we use the SAP development tools to create new processes. Or, we can put a more user friendly, mobile front-end on the existing SAP solution.
The tools that we use are mostly in the SAP ABAP development work bench, but we cross into multiple other areas to implement our solutions:

We have a complete set of custom ABAP transactions for the mobile environment to draw on. This includes transactions for warehouse management, inventory management, sales and distribution, and production.
When developing mobile applications, we can do rapid application development to quickly develop a proto-type. We have an extensive library of existing code that we leverage. The existing code set includes a library of common code and function modules that we use as building blocks.
We have developed interfaces into SAP for many different systems, and have excellent understanding of SAP technologies like BAPI's, IDOC's, and BDC's. When the standard interfaces won't work, we have the capability to write custom interfaces.
We can do the configuration of the web services required to get ITS Mobile running efficiently and reliably. ITS Mobile provides a web-browser based user interface, with graphics and buttons and touch screen support. But if you prefer text based interface for the mobile devices, we can install and configure SAP Console and the Telnet server package that it requires.